Възходът и популяризирането на скандинавския дизайн едва ли е от скоро. Има нещо, което е по-успокояващо във всеки един скандинавски интериор. Използването на простотата и функционалността на скандинавския стил има голям ефект. Чистите линии, простите цветове и вниманието към практическите детайли, като възможностите за съхранение например, са теми, които се забелязват в този интериор по скандинавски. Белите стени и организираните спални с няколко внимателно подбрани произведения на изкуството никога не са изглеждали толкова привлекателни. Погледнете отвътре и се вдъхновете за собствените си проекти в скандинавски стил.
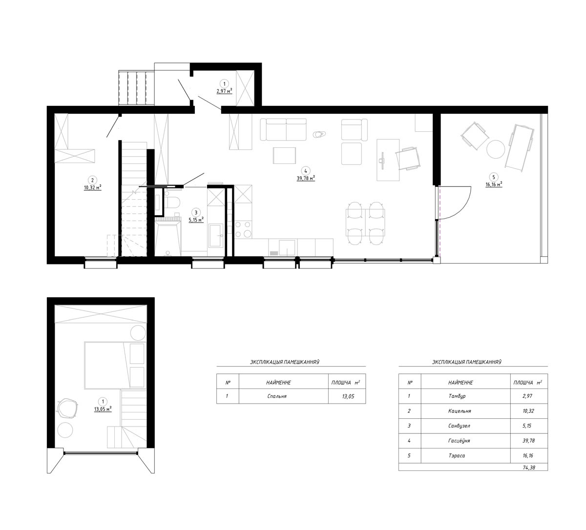
Този дом е с площ от 83 кв.м. и е разположен в квартал Volozhin в Беларус. Интериорът на вилата е внимателно проектиран. Ултра креативните рисунки на стената го правят доста артистичен. Удължената форма на къщата е едно предизвикателство – да се настанят всички области, които семейството иска: голяма всекидневна, кухненски бокс, две спални, коридор, котелно помещение и баня.
В скандинавския дизайн околната среда обикновено играе роля, а тази къща не е изключение при включването на еко-панели. Интериорът на дома е доста светъл в дизайна си – ярки цветове и някои наистина уникални дизайни на стените. Според дизайнера къщата е малко „интровертна“ с тъмния си ектериор и светъл интериор. Ефектът на този избор на цвят и дизайн е друг слой функционалност.
Малко повече цвят в спалнята, отколкото в основната зона, позволява известна степен на индивидуалност, макар че зеленият пласт със сигурност се вписва в другите цветови опции. Дизайнът не е толкова минималисртичен, че да отрича опциите за съхранение – на лице имаме функционални и красиви стелажи за спалнята. Малка част от зелената палитра също се пренася в банята, макар и по-ярка, и тя отново “играе” срещу бялото. Уникалното изкуство, което наблюадваме на стената в банята, е показателно за очите на дизайнера. Изкуството е част от къщата и нейната история.









Tози дом с привлекателни художествени елементи, ефективно използване на цветовете и внимателно внимание към детайлите е зашеметяващо и стилно решение за малко семейство.































