Artcafe.bg – Модерни идеи за интериорен дизайн, обзавеждане и декорация на дома

Идея за бързо преобразяване на дома

Днес разглеждаме креативна идея за бързо преобразяване на апартамент. Дизайнерите от IRchitect ни показват „как се прави“…

Обикновено, когато обсъждаме дизайна на интериора, говорим за естетическите аспекти – как да постигнем специфичен външен вид, на кой декоративен стил трябва да подражавате, кои са новите дизайнерски тенденции, които трябва да проверим… Това е само едно парче от пъзела. Област, която не винаги се взема под внимание, е ефектът на интериорния дизайн върху вашето подсъзнание. Вярвайте или не, изборите, които правите, свързани с това как да изглежда вашият дом, ще имат документиран ефект върху вашите емоции и възприятия. Цветът на стените във вашата кухня може да допринесе за вашето безпокойство.

Изборът на цвят влияе на вашето настроение! Не е изненада, че цветът е основен компонент на начина, по който преживяваме света около нас. Но това, което може да бъде изненадващо за някои, е фактът, че цветовете в нашата околна среда имат ефект върху настроенията и емоциите. Когато започнете да концептуализирате интериора на вашия дом, уверете се, че използвате цветове по начини, които отговарят на тона, който искате да създадете в пространството. Съвременната цветна психология датира от началото на 19-ти век, когато Йохан Волфганг фон Гьоте публикува книгата си „Теория на цветовете“.

Жълтото, използвано за акцентите в този дом, е свързано със щастие и творчество. То се съчетава  добре в комбинация с успокояващи неутрални и земни тонове и в стаи с много естествена светлина, за да създаде спокойна обстановка. Сивият цвят пък дава усещане за спокойствие. Използвайте сиво в помещения като домашни офиси или бани.

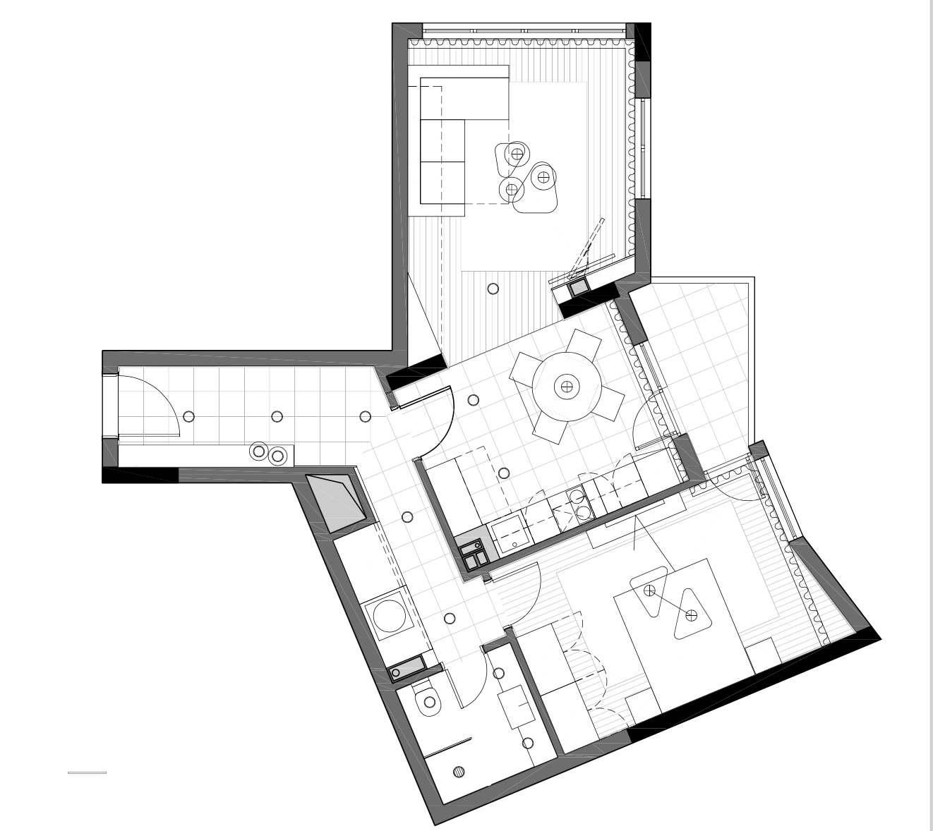
Може да живеете дълго време в едно жилище, но какво всъщност го прави дом? Нови завеси, осветление, освежаване на кухнята – и апартаментът се преобразява.

Текстил, цветове, осветление и нови корпусни мебели карат дневната в този апартамент да засияе. Цветът е страхотен, нали? А познахте ли под него стария диван от Икеа? Не винаги ефектното решение е скъпо. Вграденият шкаф над дивана помага двете помещения да прелеят едно в друго.

Завесата обединява различните прозоречни отвори и омекотява светлината. Различните групи осветителни тела приканват към създаването на различни сценарии в дневната зона – спокойна вечер с книга или парти – подходящата атмосфера се създава с натискането на бутон.

Специално подбраният тапет с геометрични елементи внася цвета и настроението от дневната и в антрето. Темата му, успокоена и овладяна, влиза и в спалнята. Там текстилът и тапетът се допълват, за да създадат уютна и спокойна атмосфера.

В кухнята дизайнерите са пребоядисали вратичките – и се оказва се почти достатъчно. Добавен е един поръчков шкаф – и готово! Апартаментът е преобразен и освежен!

Защото средата, в която живеем, определя нашата креативност – кара ни да се чувстваме добре, да даваме най-доброто от себе си…
Готови ли сте да преобразите вашият дом?
 Дизайн: irchitect.com / арх. Мартина Радева
Exit mobile version