Разгледайте тези три модерни апартамента с оригинални детски стаи, за да получите идеи за собственото си семейно пространство.
Визуализация: Espace Team
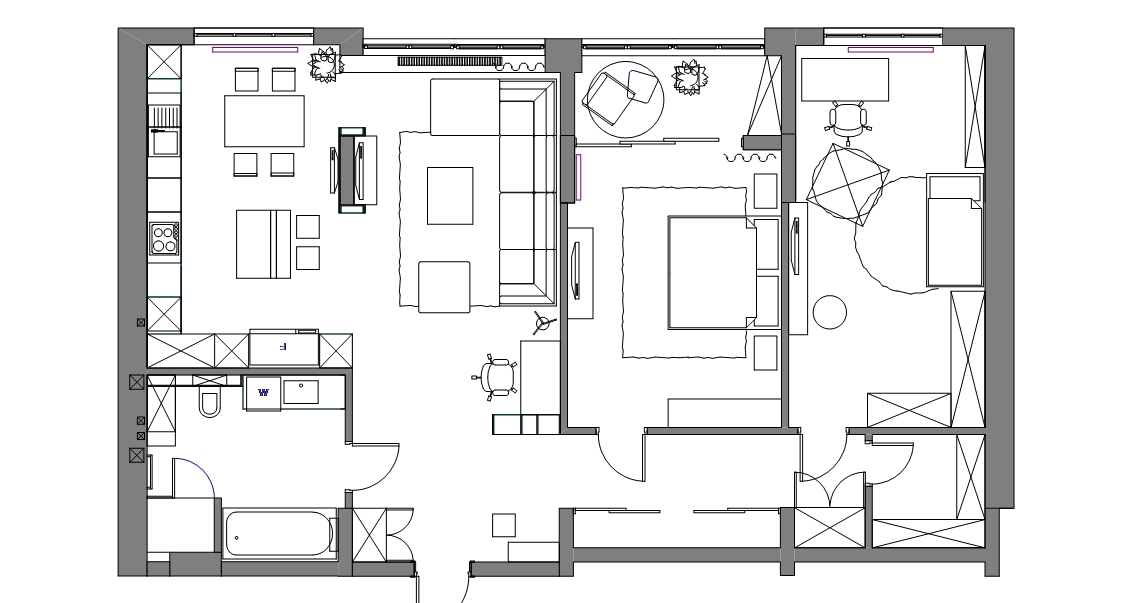
Когато една млада двойка с усет към стила иска да се установи и да създаде семейство, може да бъде предизвикателство да се съобрази с нуждите на децата. В трите апартамента, включени в тази публикация, дизайнерите са намерили начин да направят точно това. Едно игриво детско помещение не трябва да бъде жертва на поток от играчки. Избирането, организирането и поддържането не се лека задача. Използването на игриви, цветни и интерактивни елементи, ще направят пространството забавно за децата, а и привлекателно за възрастните.
Откритата дневна с чисти линии не се нуждае от допълнително пространство, за да се почувства и да изглежда голяма.
Интериорните растения винаги осветяват пространство, което иначе е неутрално. Когато дневната се влива в трапезарията, всичко се усеща по-голямо, а и забавно…
Характеристиките на естествения дървен материал придават малко рустик усещане на иначе модерното пространство. Детската стая стилумира творчеството на всеки, който влиза в стаята, а уникалната лампа за маса добавя цвят. За родителската стая темата се извисява към тропика. Стена с листа като акцента осигурява перфектния фон.
Следващият дом също така с просторен поток от отворен план. Преустроен диван в хола е привлекателно място за родители, деца и гости. Използването на обичайните стелажи за създаване на разделителна стена е креативно и практично. (Дизайнер: Nataly Solovey)
Дизайнер: O.M. Shumelda
Жълтият диван и килимът на райета придават на дизайна модерно и шик усещане, докато решенията за съхранение, разположени на стен,ите добавя практичност. Столовете за хранене са изключително модерни и правят пространството много по-отворено.
Една бяла и дървена кухня е идеална за това количество слънчева светлина, Детската стая тук разполага с уникално двойно бюро.
Елегантните дървени подове са стилни и лесни за почистване. Уникалното легло и детската нощна светлина създават усещане за чудо в пространството. Стаята на родителите има свое собствено “чувство за игривост”, което много бели спални не биха могли да постигнат. Осветлението на коловозите е модерно и творческо.
